扫一扫二维码
主营产品:QJB潜水搅拌机
全国服务热线:
CONTACT
QJB潜水搅拌机
品牌: 子泉泵业
供应商家: 上海子泉泵业制造有限公司
联系商家: 021-57151830
手机: 13512125022
潜水搅拌机又名潜水搅拌器,材质有铸铁和不锈钢两种。
铸铁材质潜水搅拌机指:主机铸铁,叶轮、导流罩不锈钢
不锈钢材质潜水搅拌机指:主机、叶轮、导流罩全部整机不锈钢。
一、QJB潜水搅拌机产品概述
QJB型潜水搅拌机又名潜水搅拌器作为水处理工艺中的关键设备之一,在水处理流程中,可实现生化过程中固液二相流和固液气三相流的均质、流动。潜水搅拌机由电机、叶轮、导流罩和安装系统等组成。潜水搅拌机为直联式结构,它与传统的大功率电机通过减速机降速相比,具有结构紧凑、低能耗、便与维护与保养。叶轮经精铸或冲压成型,精度高,推力大、流线性造型简洁美观。该系列产品主要适用于固液搅拌、混合的场所。
二、QJB潜水搅拌机性能特点
1、QJB型潜水搅拌机结构紧凑、操作简单、维护方便、安装检修简便、使用寿命长。
2、叶轮均采用耐腐蚀耐磨不锈钢材质,具有优秀的水力设计结构,工作效率高,后掠式叶片具有自洁功能可防杂物缠绕、堵塞。
3、与曝气系统混合使用可使能耗大幅度降低,充氧量明显提高,有效防止沉淀。
4、电机绕组绝缘等级为F级,防护等级为IP68,选用进口轴承,使电机的工作更加安全可靠。
5、两道机械密封材质为碳化钨-碳化钨。所有外露紧固件均为不锈钢。
车间实拍潜水搅拌机照片
三、QJB潜水搅拌机适用范围
搅拌机在下列条件下应能正常连续运行
1)介质温度不超过40℃,如有需要可提升配置,达到100℃使用要求;
2)介质的PH值在5-9之间,选用不锈钢可适应更恶劣环境;
3)液体密度不超过1.15千克/立方米;
4)长期潜水运行,潜水深度一般不超过20m;
四、QJB潜水搅拌机选型注意事项
潜水搅拌机的选型是一项比较复杂的工作,选型的正确与否直接影响设备的正常使用,作为选型的原则就是要让搅拌机在适合的容积里发挥充分的搅拌功能,一般可用流速来确定。根据污水处理厂不同的工艺要求,搅拌机流速应保证在0.15~0.3m/s之间,如果低于0.15m/s的流速则达不到推流搅拌效果,超过0.3m/s的流速则会影响工艺效果且造成浪费。所以在选型前首先确定QJB搅拌机运用的场所,如:污泥池、污水池、生化池;其次是介质的参数,如:悬浮物含量、温度、粘度、PH值;还有水池的形状、水深等。
潜水搅拌器所需的配套功率是按容积大小、搅拌液体的密度和搅拌深度而确定的,根据具体情况采用一台或多台搅拌机。
五、QJB潜水搅拌机产品型号说明
QJB1.5/6-260/3-960/ C/S/P
QJB------潜水搅拌机的拼音缩写
1.5-----电机功率(KW)
6-----电机级数
260-----叶轮直径
3-----叶片数
960-----额定转数(r/min)
C/S/P/AL-----材质:C代表铸铁,S代表不锈钢,P代表聚氨酯
六、QJB潜水搅拌机型号规格参数
功率 | 电流 | 叶轮 直径 | 转速 | 重量 | 推力 | |
kw | A | mm | r/min | kg | N | |
QJBO.85/8-260/3-740/S | 0.85 | 3.2 | 260 | 740 | 60 | 163 |
QJB1.5/6-260/3-980/S | 1.5 | 4 | 260 | 960 | 65 | 290 |
QJB2.2/8-320/3-740/S | 2.2 | 5.9 | 320 | 740 | 93 | 582 |
4 | 10.3 | 320 | 960 | 100 | 609 | |
QJB1.5/8-400/3-740/S | 1.5 | 5.2 | 400 | 740 | 82 | 600 |
QJB2.5/8-400/3-740/S | 2.5 | 7 | 400 | 740 | 94 | 800 |
QJB3/8-400/3-740/S | 3 | 8.6 | 400 | 740 | 96 | 920 |
QJB4/6-400/3-980/S | 4 | 10.3 | 400 | 980 | 100 | 1200 |
QJB4/12-620/3-480/S | 4 | 14 | 620 | 480 | 206 | 1400 |
QJB5/12-620/3-480/S | 5 | 18.2 | 620 | 480 | 212 | 1800 |
5.5 | 15 | 620 | 740 | 225 | 1500 | |
QJB7.5/6-620/3-980/S | 7.5 | 20 | 620 | 980 | 245 | 2100 |
QJB7.5/12-620/3-480/S | 7.5 | 28 | 620 | 480 | 256 | 2600 |
QJB10/12-620/3-480/S | 10 | 32 | 620 | 480 | 266 | 3300 |
低速推流器型号规格参数
功率 | 电流 | 叶轮 直径 | 转速 | 重量 | 推力 | |
kw | A | mm | r/min | kg | N | |
QDT1.5/4-1100/2-85/P | 1.5 | 4 | 1100 | 85 | 170 | 1780 |
QDT3/4-1100/2-135/P | 3 | 6.8 | 1100 | 135 | 180 | 2410 |
QDT1.5/4-1400/2-36/P | 1.5 | 4 | 1400 | 36 | 180 | 696 |
QDT2.2/4-1400/2-42/P | 2.2 | 4.9 | 1400 | 42 | 185 | 854 |
QDT2.2/4-1600/2-36/P | 2.2 | 4.9 | 1600 | 36 | 188 | 1058 |
QDT3/4-1600/2-52/P | 3 | 6.8 | 1600 | 52 | 190 | 1386 |
1.5 | 4 | 1800 | 42 | 195 | 1480 | |
QDT3/4-1800/2-52/P | 3 | 6.8 | 1800 | 52 | 199 | 1946 |
QDT4/4-1800/2-63/P | 4 | 9 | 1800 | 63 | 200 | 2750 |
QDT2.2/4-2000/2-36/P | 2.2 | 4.9 | 2000 | 36 | 205 | 1459 |
QDT4/4-2000/2-52/P | 4 | 9 | 2000 | 52 | 213 | 1960 |
QDT4/4-2200/2-52/P | 4 | 9 | 2200 | 52 | 220 | 1986 |
QDT5/4-2200/2-63/P | 5 | 11 | 2200 | 63 | 230 | 2380 |
QDT1.3/4-2500/2-36/P | 1.3 | 6.8 | 2500 | 36 | 230 | 2380 |
QDT4/4-2500/2-42/P | 4 | 9 | 2500 | 42 | 250 | 2350 |
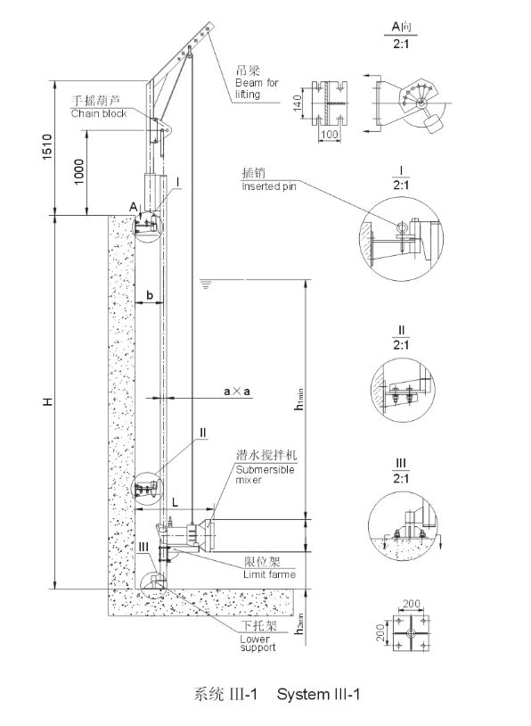
七、QJB潜水搅拌机的安装系统
潜水搅拌机的专用安装系统可在无需排出池中污水的情况下,能快速安装和拆卸潜水搅拌机。
当池深H<4米时建议采用安装系统Ⅰ(一般在1选用功率1.5KW以内)。潜水搅拌机的潜水深度可以根据需要进行垂直方向的调节,而且在水平面内可绕导杆旋转的角度为±60°起吊系统底座、支撑架和下托架与池的有关联接面均采用膨胀螺栓固定,无需预留孔。
当池深H>4米时建议采用安装系统Ⅱ,需在池底做一混凝土基础(或钢结构底座)。起吊系统底座、钢绳固定架和导向底座与池的有关联接面均采用膨胀螺栓固定,无需预留孔。安装系统Ⅱ用导向钢绳替代导杆,具有运输方便、现场安装简单等特点。该系统从根本上避免了由于运输引起导杆弯曲、变形有而影响正常使用的情况,并有效改善了池深过深情况下,由于导杆的安装误差而导致的无法正常起吊等现象。在有悬臂池顶(如图)的安装条件下更显得操作方便可靠。
客户定货时,请提供池深H及池型图,以便厂方加工时确定导杆或导向钢丝的尺寸。安装系统的材质采用不锈钢(或碳钢)制造。安装系统中除导杆或导向钢丝、起吊底座外,多台潜水搅拌机可共用一套起吊装置(用户有特殊要录除外)。
QJB搅拌机的专用安装系统可在无需排出池中污水情况下,能快速安装和拆卸潜水搅拌机;
安装系统Ⅰ只适用池深<4m,机型为QJB0.85/8-260/3-740C和QJB1.5/6-260/3-980C搅拌机,其中Ⅰ-1可在水平方向和垂直方向进行调节;
安装系统Ⅱ、Ⅲ、Ⅳ、Ⅵ适用于池深≥4m,导杆可沿水平方向绕导杆轴线旋转,转角-60°~+60°当池深大于4米时,应在导杆中间增加一支撑架;
支撑架和下托架与池壁、池底均用钢膨胀螺栓固定,无需预留孔;
潜水搅拌机的安装系统材质采用不锈钢和碳钢防腐供选择;
八、QJB潜水搅拌机的安装示意图




九、QJB潜水搅拌机产品订货须知
㈠、
①QJB型潜水搅拌机(潜水搅拌器)名称与型号
②QJB型潜水搅拌机(潜水搅拌器)叶轮直径(mm)
③QJB型潜水搅拌机(潜水搅拌器)转速(r/min)
④QJB型潜水搅拌机(潜水搅拌器)功率(KW)
⑤QJB型潜水搅拌机(潜水搅拌器)电压〔V〕
⑥QJB型潜水搅拌机(潜水搅拌器)是否带附件以便我们的为您正确选型。
㈡、若已经由设计单位选定我公司的潜水搅拌机产品型号,请按型号直接向上海子泉水泵厂销售部订购。